Crotone città dei bambini

 
Un nuovo asilo
Un nuovo asilo

Crotone si conferma città dei bambini.
E' stata firmata presso la Regione Calabria dall'assessore alle Politiche Sociali Filippo Esposito, su delega del Sindaco Peppino Vallone, la convenzione per la costruzione di un nuovo asilo che sorgerà nel popolare quartiere di Tufolo.
Un progetto per complessivi 500.000 € per il quale l'amministrazione comunale si era candidato attraverso un bando europeo e che è stato premiato proprio per  la sue innovative tecniche di realizzazione.
Il progetto del nido d'infanzia prevede, infatti, la realizzazione di un edificio interamente costruito con materiali e tecniche di bioedilizia, sfruttando prevalentemente il legno per le strutture portanti, il pavimento ed il tetto.
Quest'ultimo verrà realizzato con pannelli fotovoltaici interamente integrati nella struttura portante, al fine di rendere l'edificio completamente autosufficiente dal punto di vista energetico.
Particolare importanza è stata rivolta anche alla coibentazione termica delle pareti perimetrali ed all'isolamento del pavimento, raggiungendo così un elevato grado di efficienza energetica.
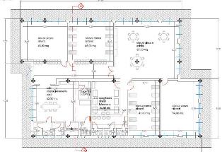
E' importante sottolineare, inoltre, che l'intero edificio sarà  totalmente inserito in un ambiente verde ed alberato. Relativamente alla ricettività, la struttura, progettata per ospitare 50 bambini, è suddivisa nei seguenti spazi: due vani per lattanti (sala nanna; sala pappa), tre vani per divezzi (sala nanna, sala pappa e sala giochi), una sala per razionamento pasti, un vano dispensa, servizi igienici e spazio esterno per gioco.
In totale la struttura occuperà una superficie coperta di circa 500 metri quadrati ed altri 1000 metri quadrati di giardini e spazi esterni
Non si è voluto ricreare, infatti, un edificio freddo realizzato in ferro e cemento, bensì una
struttura che valga la pena di essere vissuta, dove ogni bimbo possa trovar comfort e piacere non solo nel vederla, ma anche nel viverla.
Una progettazione che ha l'ulteriore valenza di essere tutta interna al Comune, i cui tecnici hanno dimostrato oltre che competenza anche un particolare riguardo al mondo dei bambini.
In particolare, per la collocazione del nido d'infanzia è stata individuata un'area nel pieno centro del nascente quartiere di Tufolo - Farina, che ormai ha raggiunto una densità demografica di notevole considerazione. Dall'analisi del sito risulta facile comprendere come il futuro asilo nido si collochi in una zona di particolare interessante urbano, ovvero nelle immediate vicinanze di un ampio parcheggio, di cui poter usufruire per accompagnare i bimbi a scuola, ed allo stesso tempo anche in prossimità di un'area di fruizione pubblica, che sarà dedicata ad ampi spazi verdi.
Grande soddisfazione viene espressa dal Sindaco Vallone e dall'Assessore alle Politiche Sociali Filippo Esposito che dichiara: "come il progetto risponda all'esigenza di accoglienza di bambini che proviene dai genitori che risiedono in quei quartieri"
"Un progetto che, tra l'altro, prevede anche l'assunzione di operatori. Una buona risposta che l'amministrazione fornisce alle tematiche dell'occupazione" conclude Esposito.
 

 
Valuta questo sito: RISPONDI AL QUESTIONARIO